CARSON IMMOBILIER Agence
Télécharger la fiche

Immeuble 495 m² 1 etage(s) TRAD_ALIZE_OPTIONS_TRAD_ALIZE_OPTIONS_LABEL_etage

Marly (57155)
530 000 € Référence 1112

A propos de ce bien

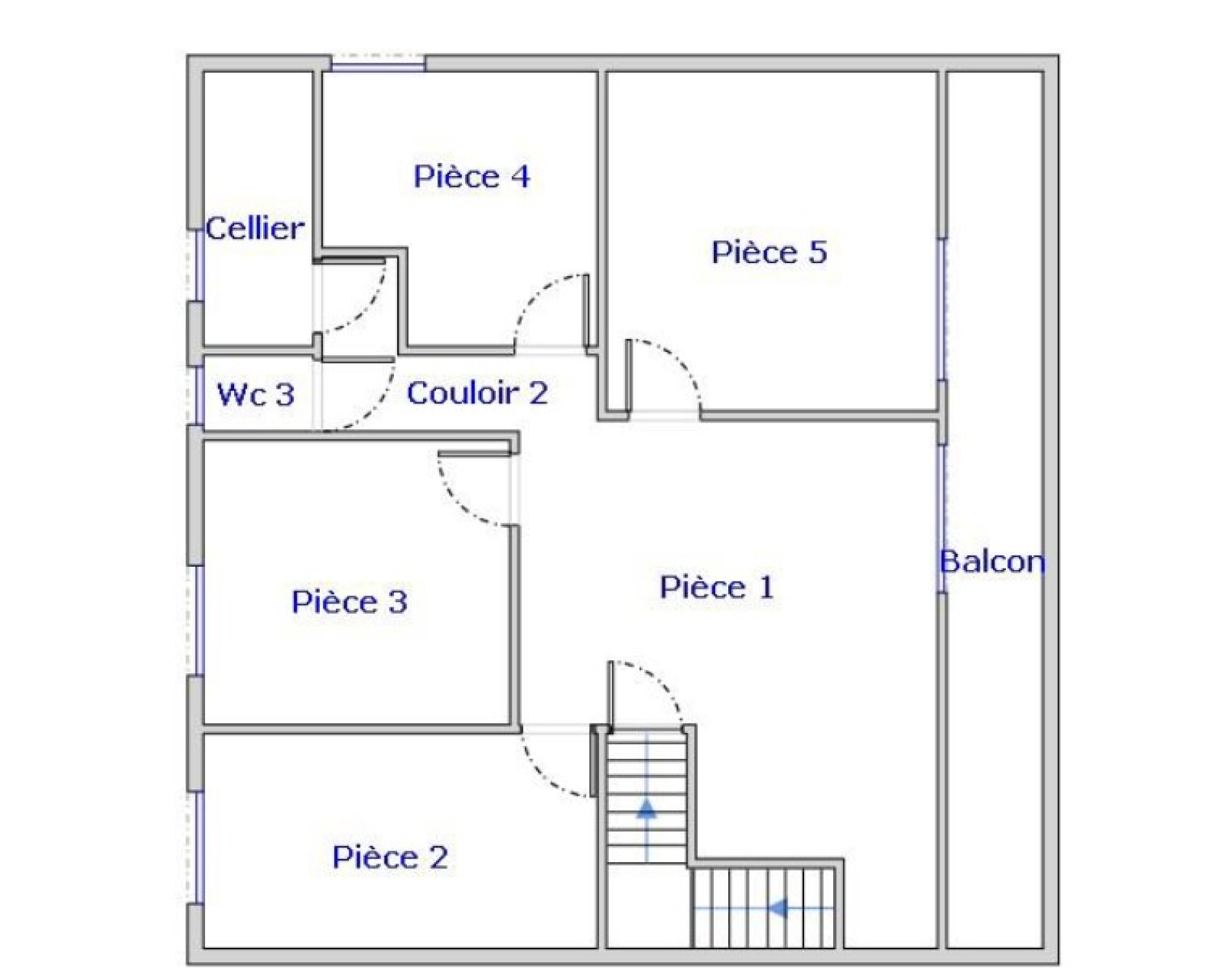
MARLY Frescaty - Mermoz (Proximité MONTIGNY-LES-METZ) Sur la Zone d'Activité Costes et Bellonte, idéal investisseur, ensemble immobilier de 495 m² sur un terrain de 731 m² avec parking avant privatif et jardinet arrière, comprenant: Au RDC: 105 m² de bureaux avec accueil, salle de réunion, cuisine et sanitaires; 284 m² de dépôt et réserves. Au 1er: Un logement F5 à conforter de 106 m² avec balcon et entrée indépendante. Le tout libre de toute location et occupation -Idéal artisan- Surface totale: 495 m² Nombre de parking privatif: 5 Taxe Foncière: 3.293 € Adresse: Rue Maryse Bastié

 Les informations sur les risques auxquels ce bien est exposé sont disponibles sur le site Géorisques : www. georisques. gouv. fr

Caractéristiques de ce bien

  • Surface 495 m²
  • carrez 215,81 m²
  • terrain 731 m²
  • construit en 1983
  • Chauffage individuel : radiateur (electrique)
  • 5 parking(s)
  • 1 niveau(x)
  • 1 étage(s)
  • balcon

Diagnostics énergétiques

DPE
GES
DPE ANCIENNE VERSION

Informations financières

Prix de vente 530 000 € Les honoraires d'agence seront intégralement à la charge du vendeur
Taxe foncière annuelle 3 293 €

Calcul des mensualités

* Champs obligatoires