CARSON IMMOBILIER Agence
Télécharger la fiche

Appartement 2 pièce(s) 1 chambre(s) 37 m²

Montigny-lès-Metz (57950)
44 000 € Référence 1117

A propos de ce bien

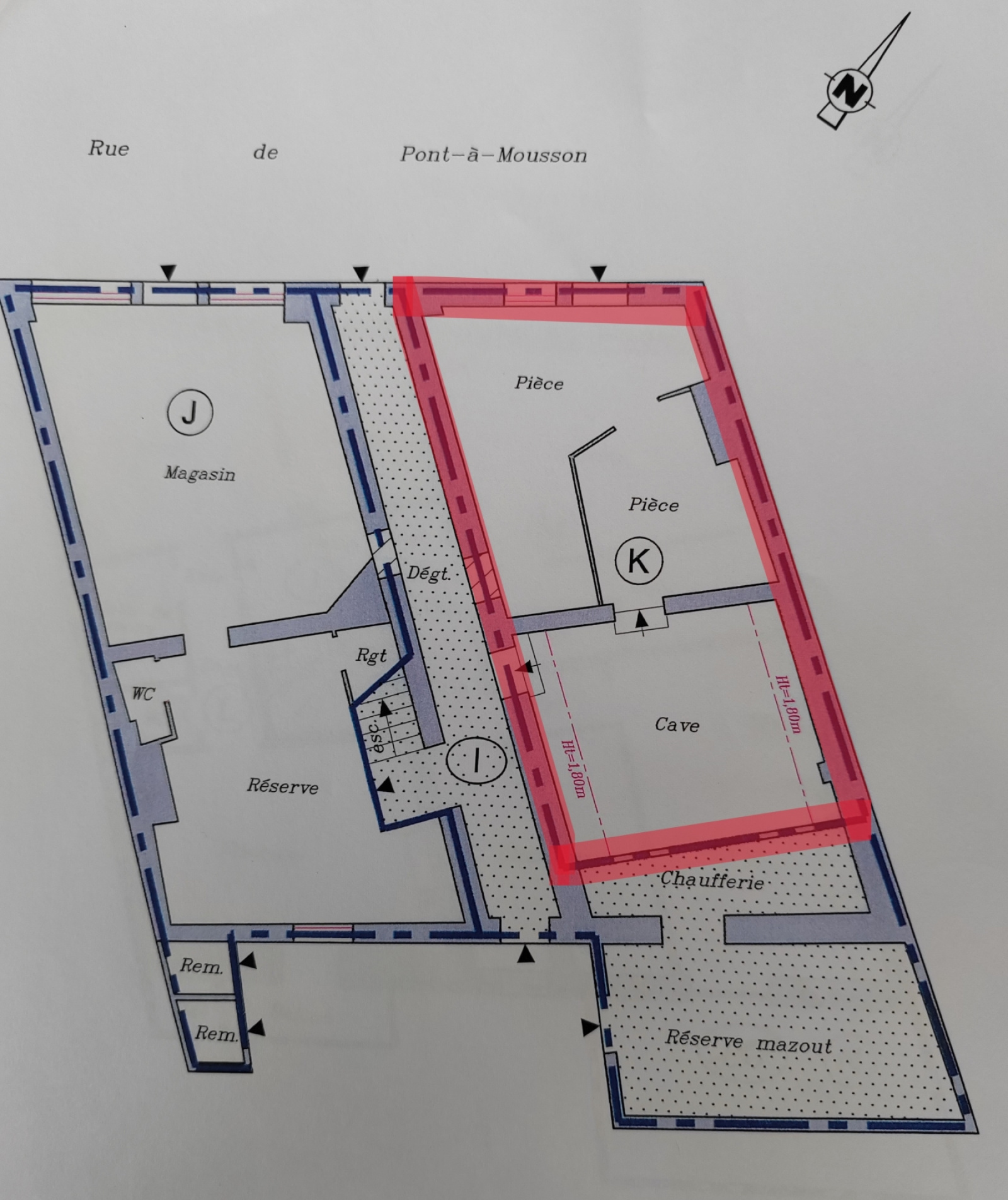
DÉSOLÉ VENDU ! MONTIGNY-LES-METZ: Europa / Courcelles (Bus pour METZ L1 et C14 à 50 m.) A SAISIR ! Au RDC d'un petit immeuble avec entrée direct sur rue, local professionnel de 36,90 m² Carrez (40,29 m² au sol) à rénover entièrement ou pouvant être transformé en logement de type F1 bis pour location à la nuitée. Il est composé au même niveau de 2 pièces séparées par une cloison démontable ainsi qu'une cave voutée à l'arrière avec point d'eau et évacuation (salle d'archives ou SDB). La transformation en habitation doit faire l'objet d'une simple demande préalable de travaux (DP)

Caractéristiques de ce bien

  • Surface 37 m²
  • carrez 36,90 m²
  • 1 chambre(s)
  • 1 salle(s) d'eau
  • construit en 1960
  • 3 étage(s)
  • cave
  • quartier La Vacquinière

Diagnostics énergétiques

DPE
GES
DPE non concerné

Informations financières

Prix de vente 44 000 € Les honoraires d'agence seront intégralement à la charge du vendeur
Charges 20 €
Taxe foncière annuelle 450 €

Informations de copropriété

Copropriété Oui
Lot n° K
Nombre de lots 8
Quote part annuelle des charges 240 €
Plan de sauvegarde Non
Statut du syndic Pas de procédure en cours

Calcul des mensualités

* Champs obligatoires